Our offices will be closed from 4:00pm on 24 December and will reopen on 2 January 2026. Have a lovely festive period! 🎄

Bedford Road , E17 4PU

OIEO £850,000

Bedford Road Walthamstow , E17 4PU

OIEO £850,000

4 Bedroom

3 Bath

Independent mortgage advice
Independent mortgage advice

A beautifully restored Victorian family home occupying a substantial corner plot on Walthamstow’s coveted Bedford Road. Harbouring Lloyd Park boarders, this residency boasts a prestigious locale, with enviable access to the Park’s verdant expanses and amenities. Inside, tasteful interiors meet thoughtful design, featuring an immaculately extended loft and convenient side access.

This desirable abode offers both the tranquillity of its serene surroundings as well as the urban convenience and amenities of E17, with Walthamstow Central station easily accessible in under twenty, ensuring seamless connections across the Capital, via the Victoria Line.

IF YOU LIVED HERE...

A characterful and stylish four-bedroom Victorian family home residing on the corner of a tranquil tree-lined street in the heart of Walthamstow, a true metropolitan escape. This charming end-of-terrace residency showcases both period charm with contemporary touches. Beyond its prestigious brick façade, original stripped floorboards and a rustic timber staircase set the tone, while the front reception offers a warm retreat with crisp white walls, bespoke shelving, and an exposed brick fireplace. Double-glazed wooden sash windows invite natural light, enhancing the home’s bright and tranquil feel.

At the heart of the home, the refined kitchen-diner features soft sage cabinetry, quartz countertops, and brushed brass fixtures. These tasteful touches are complimented by the striking skylight and industrial-style black-framed patio doors, creating an airy yet modern feel. Opening onto a south-facing garden with a chic tiled patio and verdant greenery, ideal for outdoor dining and relaxing summer afternoons yet practical enough for entertaining young families.

Upstairs, four well-appointed bedrooms combine comfort and character, including an illustrious loft suite with an abundance of natural light administered through well-appointed skylights as well as the convenience of bespoke storage. The family bathroom showcases sleek contemporary tiling and matte black fixtures, while a ground floor WC and utility room offer everyday practicality.

Enviably appointed just moments from leafy Lloyd Park, this home enjoys Walthamstow’s best offerings, from the renowned William Morris Gallery to independent cafés and eateries. Excellent transport links place Oxford Circus and Liverpool Street within twenty minutes, and the property is well located for several Ofsted acclaimed primary schools, making this a rare find in one of E17’s most sought-after pockets.

WHAT ELSE?

- For those on their fitness journey, the expansive Feel Good Centre is right on your doorstep. In just a five-minute stroll, you’ll discover a range of fitness facilities, including a swimming pool, gym, multi-sport classes, and soft play—ideal for young families.
- Not only is Lloyd Park a botanical escape, but it is also a dynamic social hub, home to a weekly Saturday market. Here you’ll be able to indulge in a delightful showcase of the borough's best, featuring over 30 stalls with local produce and a variety of hot and cold cuisines.
- Your vibrant high street boasts a myriad of artisanal coffee shops and eateries, including the beloved Wynwood—a charming community hub serving exquisite brews, fresh juices, and gourmet delights. Bask in the warmth of summer afternoons on their inviting outdoor terrace while indulging in a thoughtfully curated menu.

Features

  • Four Bedroom House
  • Victorian End of Terrace With Side Access
  • Moments From Lloyd Park
  • South Facing Low Maintenance Garden
  • Well Located For Several Highly Rated Primary Schools
  • Ground Floor WC & Utility Room
  • Double Glazed Wooden Sash Windows
  • First Floor Family Bathroom
  • A Short Walk to The Feel Good Center
  • Convenient Side Storage Perfect for Bikes and Gardening Tools
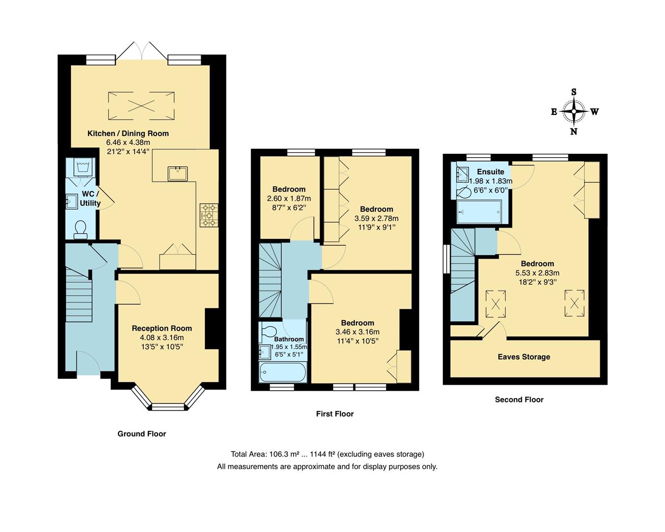
Reception Room

4.08 x 3.16m (13'4" x 10'4")

13’4 "

Kitchen / Dining Room

6.46 x 4.38m (21'2" x 14'4")

21’2 "

WC / Utility
Bathroom

1.95 x 1.55m (6'4" x 5'1")

6’4 "

Bedroom

3.46 x 3.16m (11'4" x 10'4")

11’4 "

Bedroom

2.60 x 1.87m (8'6" x 6'1")

8’5 "

Bedroom

3.59 x 2.78m (11'9" x 9'1")

11’8 "

Bedroom

5.53 x 2.83m (18'1" x 9'3")

18’1 "

Ensuite

1.98 x 1.83m (6'5" x 6'0")

6’5 "

Eaves Storage
Garden

10.67m (35)

35 "

Energy Performance Certificate

View the Energy Efficiency Rating and Environmental Impact Rating for this property here.

Disclaimer

Stow Residential Limited endeavour to maintain accurate depictions of properties in Virtual Tours, Floor Plans and descriptions, however, these are intended only as a guide and purchasers must satisfy themselves by personal inspection.

Illustration of a house with surrounding plants

a word from the owners...

  "We’ve absolutely loved living here, It’s incredibly rare to find a home in Walthamstow with side access and end of terrace—no dragging bins, bikes, or muddy boots through the house! The south-facing garden has been a dream which we kept low maintenance and easy. We have re done every bit of the house from the ground floor extension, new boiler and most recently the loft. One of our favourite things about living here has been Lloyd Park—an absolute godsend with young kids. There’s always something happening, from markets to community events, festivals, and we love popping out to the Saturday market for fresh bread and a coffee (there’s so many local coffee options from, Wynwood, Yellow Warbbler and Deeneys). Being so close to the Feel Good Centre is a huge bonus too—regular swimming trips, gym sessions, and even a super-hot sauna (personal favourite!). The location is ideal for local primary schools, and when we get a rare evening out, The Bell does a great pint (plus football!), while the Dog & Duck is perfect in the summer with its beer garden. The road has a great sense of community—there’s a WhatsApp group, and we’ve had some nice street parties over the years. We’ll be sad to leave, but we know the next owners will love it just as much as we have!"

What's on your doorstep?

Our Local Guide:
Walthamstow

Bedford Road, Walthamstow — Stow Brothers

Situated on the edge of spacious Epping Forest, but every inch urban London, Walthamstow is one of those rare locations where you can have your (artisan) cake and eat it too. 

Built from proper East End roots, the rapidly expanding community has transformed the area into a buzzy, creative hub and destination in its own right, making Walthamstow’s close proximity to central London less relevant than it perhaps once was (although if you must leave, it’s only a short hop on the Victoria line or London Overground). In fact, these days you’re more likely to see daytrippers coming into the area, keen to sample its varied offerings of food, drink, culture and green space. However, lucky locals get the added benefit of being part of a genuinely cheery community – and amongst the first to know about that latest hot new opening.

Area Guide
Bedford Road, Walthamstow — Stow Brothers
Walthamstow William Morris

❤ Team favourites

Places + wonders

Bedford Road, Walthamstow ’s
Features + Perks

Be in the know with our Secret Showcase.

Our Secret Showcase gains you early access to our most beautiful homes before they're listed anywhere else. To be the first in the know, subscribe to our mailing list and/or follow us on social media.

@StowBrothers